Bỏ qua nội dung
  • Thế giới bản vẽ – Nơi khởi nguồn mọi thiết kế kỹ thuật và công trình.
  • Đăng nhập
  • Tải lên
    Rút tiền $
Thế Giới bản vẽThế Giới bản vẽ
  • Tải lên
    Rút tiền $
  • Danh mục
    • Autocad
    • Sketchup
    • 3Ds Max
    • Corel Rraw
    • Sap2000
    • Revit
    • Photoshop
    • Office
    • Khác
  • home

  • Giới thiệu
  • Thể loại
    • Xây dựng
    • Nội thất
    • MEP
    • Cơ khí
    • Đồ án – Luận văn
    • Hồ sơ – Tài liệu
    • Giáo trình
    • Mã Code
    • Khác
  • Chất lượng
  • Miễn phí
  • Tin tức
  • Trang chủ
  • Autocad
  • Xây dựng
  • Bản vẽ Shopdrawing dầm cột vách
Bản vẽ Shopdrawing dầm cột vách

Bản vẽ Shopdrawing dầm cột vách

  • Danh mục Autocad
  • Thể loại Xây dựng
  • Nhóm file Miễn phí
  • Ngày đăng 20-10-2025
  • Giá 0 VNĐ
  • Lượt tải 26
  •   DOWNLOAD

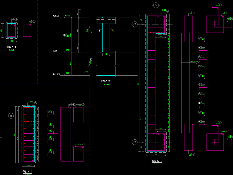
    Bản vẽ Shopdrawing dầm cột vách- Tham khảo dành cho kỹ sưu shopdrawing

    MÔ TẢ CHI TIẾT

    HÌNH ẢNH DEMO

    File liên quan

    Bản vẽ kiến trúc nhà biệt thự phong cách tân cổ điển ( 9.0 x 10m)
    Xem Lưu
    129
    0
    Autocad

    Bản vẽ kiến trúc nhà biệt thự phong cách tân cổ điển ( 9.0 x 10m)

    Bản vẽ kiến trúc biệt thự 2 tầng (9.7 x 20m)
    Xem Lưu
    177
    0
    Autocad

    Bản vẽ kiến trúc biệt thự 2 tầng (9.7 x 20m)

    Bản vẽ kiến trúc biệt thự 3 tầng (10.3 x 10.4m) (phong cách tân cổ điển/biệt thự mái Thái).
    Xem Lưu
    201
    0
    Autocad

    Bản vẽ kiến trúc biệt thự 3 tầng (10.3 x 10.4m) (phong cách tân cổ điển/biệt thự mái Thái).

    File cad nội thất bàn ăn và ghế 0.6×0.3m (mặt căt+mặt đứng)
    Xem Lưu
    295
    0
    Autocad

    File cad nội thất bàn ăn và ghế 0.6×0.3m (mặt căt+mặt đứng)

    File cad thiết kế nôi thất giường2.1×1.8m(mặt bằng+mặt cắt)
    Xem Lưu
    231
    0
    Autocad

    File cad thiết kế nôi thất giường2.1×1.8m(mặt bằng+mặt cắt)

    Quy hoạch mạng lưới thoát nước thải Thị trấn ngô mây huyện phù cát tỉnh bình định
    Xem Lưu
    301
    0
    Autocad

    Quy hoạch mạng lưới thoát nước thải Thị trấn ngô mây huyện phù cát tỉnh bình định

    Full quy hoạch 1500 bắc vũng tàu (Sử dụng đất + giao thông + cấp thoát nước + san nền + cấp điện)
    Xem Lưu
    278
    0
    Autocad

    Full quy hoạch 1500 bắc vũng tàu (Sử dụng đất + giao thông + cấp thoát nước + san nền + cấp điện)

    Full chi block dyamic tự động cho PCCC (CO+VAN+TEE TỦ)
    Xem Lưu
    182
    0
    Autocad

    Full chi block dyamic tự động cho PCCC (CO+VAN+TEE TỦ)

    NGƯỜI BÁN

    thanh.son
    • Chất lượng

      17 File

    • Miễn phí

      15 File

    Bạn có bản vẽ hay
    ĐĂNG BÁN NGAY
    File liên quan
    • Nhà cấp 4 mái nhật kích thước 8x16m
      Nhà cấp 4 mái nhật kích thước 8x16m
      Autocad
      22158   8051
    • Thư viện autocad siêu đầy đủ
      Thư viện autocad siêu đầy đủ
      Autocad
      15657   1296
    • File Cad Thiết Kế Biệt Thự 2 Tầng Kích Thước 8x10m
      File Cad Thiết Kế Biệt Thự 2 Tầng Kích Thước 8x10m
      Autocad
      15096   685
    • Bản vẽ thiết kế nhà phố 3 tầng 1 tum kích thước 6x15m
      Bản vẽ thiết kế nhà phố 3 tầng 1 tum kích thước 6x15m
      Autocad
      8742   391
    • Bản vẽ thiết kế dinh thự kích thước 11.7×15.5m tại Hà Nội
      Bản vẽ thiết kế dinh thự kích thước 11.7×15.5m tại Hà Nội
      Autocad
      4024   42

    Hotline: 0924839269

    Email: thegioibanve.net@gmail.com

    Thanh toán và tải file (24/7)
    Hỗ trợ tự động mọi lúc nọi nơi.

    Đội ngũ hỗ trợ Online (T2 - T7)

    Sáng: Từ 7h30 đến 11h30

    Chiều: Từ 13h30 đến 17h30

    (CN và các ngày lễ nghỉ, TV cần hỗ trợ liên hệ lại trong giờ hành chính)

    Về chúng tôi

    Giới thiệu
    Quy định chung
    Chính sách
    Chia sẻ doanh thu
    Sự kiện

    Hướng dẫn

    Download tài liệu miễn phí
    Download tài liệu có phí
    Hướng dẫn rút tiền
    Tiếp thị liên kết

    Gửi hỗ trợ - Góp ý

      Thanh toán đảm bảo
      • Top tìm kiếm
      • File thiết kế
      • Thiết kế biệt thự
      • Thiết kế nội thất
      • Bản vẽ nhà phố
      • mẫu biệt thự
      • bản vẽ xây dựng
      • home

      • Giới thiệu
      • Thể loại
        • Xây dựng
        • Nội thất
        • MEP
        • Cơ khí
        • Đồ án – Luận văn
        • Hồ sơ – Tài liệu
        • Giáo trình
        • Mã Code
        • Khác
      • Chất lượng
      • Miễn phí
      • Tin tức
      • Đăng nhập
      • Đăng nhập
      • Đăng ký
      Quên mật khẩu
      Bạn quên mật khẩu? Vui lòng nhập tên người dùng hoặc địa chỉ email của bạn. Bạn sẽ nhận được liên kết để tạo mật khẩu mới qua email.
      Đăng nhập bằng Google
      body::-webkit-scrollbar { width: 7px; } body::-webkit-scrollbar-track { border-radius: 10px; background: #f0f0f0; } body::-webkit-scrollbar-thumb { border-radius: 50px; background: #dfdbdb }